Informazioni Tecniche - Descrizione Dei Profili
CLASSIC 8000
TELAIO STANDARD
8001 - 6 camere, 74 mm di profondità chiamato anche telaio ad L ( senza battuta)
TELAIO NO STANDARD
8095 - 6 camere, 74 mm di profondità chiamato anche telaio a Z
oppure anta su anta ( battuta da 20 mm con guarnizione in battuta)
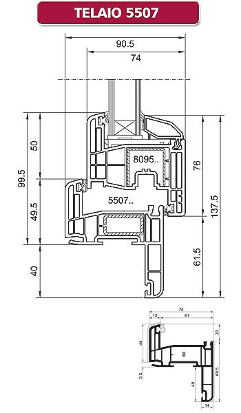
TELAIO NO STANDARD
5507 6 camere, 74 mm di profondità a Z con battuta da 40 mm
TELAIO NO STANDARD
8027 4 camere, 74 mm di profondità a Z con battuta da 50 mm
TELAIO NO STANDARD
8030 4 camere, 74 mm di profondità a Z con battuta da 30 mm
AI 5 TELAI SI POSSONO ABBINARE 2 TIPI DI ANTA:
8095, 6 camere, 74 mm di profondità
8096, 6 camere, 84,5 mm di profondità
PRESTAZIONI CERTIFICATE:
- PERMEABILITA' ALL' ARIA SECONDO UNI EN 12207 - CLASSE 4
- TENUTA ALL'ACQUA SECONDO UNI EN 12208 - 900 A
- RESISTENZA AL CARICO DEL VENTO SECONDO UNI EN 12210 - C3
- VALORE Uf ( DEL NODO) = 1,4 K
- ABBATIMENTO ACUSTICO SECONDO EN 20140-3 FINO A RW = 47 DB (A SECONDA DEL TIPO DI VETRO UTILIZZATO).




NODO CENTRALE SISTEMA 8000



S8000 PLUS - S8000 PLUS MAX
TELAIO 5001 82 mm di profondità chiamato anche telaio ad L (senza battuta)
AL TELAIO 5001 SI POSSONO ABBINARE 2 TIPI DI ANTA: 8096 ARROTONDATA E NELLA VERSIONE
PLUS MAX 5008
PRESTAZIONI CERTIFICATE:
- PERMEABILITA' ALL' ARIA SECONDO UNI EN 12207 - CLASSE 4
- TENUTA ALL'ACQUA SECONDO UNI EN 12208 - 900 A
- RESISTENZA AL CARICO DEL VENTO SECONDO UNI EN 12210 - C3
- VALORE Uf (DEL NODO) = 1,4 K
- ABBATIMENTO ACUSTICO SECONDO EN 20140-3 FINO A RW = 47 B (A SECONDA DEL TIPO DI VETRO UTILIZZATO).

Confort 9000
TELAIO 6001, 6 camere, 82,5 mm di profondità, chiamato anche telaio ad L (senza battuta),
con tre guarnizioni (2 su telaio ed una sull'anta).
IL Telaio 6001 si abbina con anta 6003 - 6 camere da 82,5 mm, 6 camere
PRESTAZIONI CERTIFICATE:
- PERMEABILITA' ALL' ARIA SECONDO UNI EN 12207 - CLASSE 4
- TENUTA ALL'ACQUA SECONDO UNI EN 12208 - 900 A
- RESISTENZA AL CARICO DEL VENTO SECONDO UNI EN 12210 - C3
- VALORE Uf (DEL NODO) = 0.92 K
- ABBATIMENTO ACUSTICO SECONDO EN 20140-3 FINO A RW = 47 DB (A SECONDA DEL TIPO DI VETRO UTILIZZATO).
